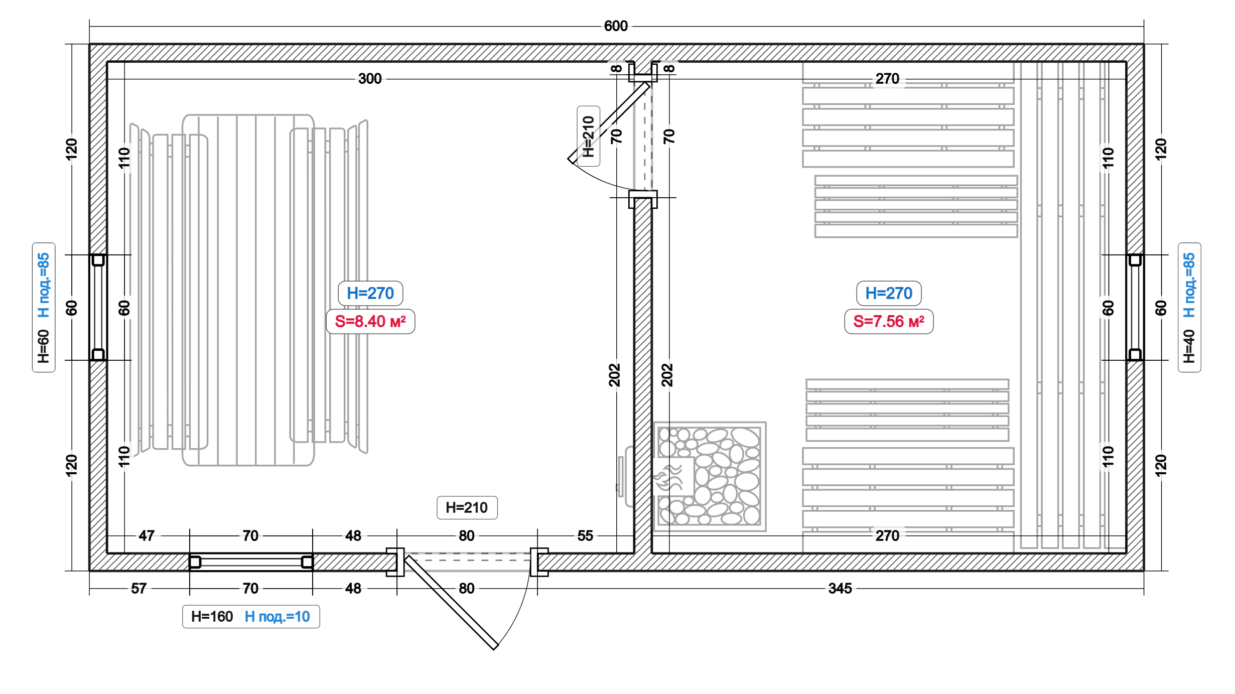
Медвежий угол 3x6 м

735 000 ₽ 3x6 м 18 м²

Описание

Просторная баня увеличенного размера для большой компании.

Характеристики

✓ Стены брус без утепления
✓ Утепление пола и потолка 150 мм
✓ Печь-каменка
✓ Комната отдыха

Комплектация

  • ✓ Брус собственного профилирования
  • ✓ Полок в парной
  • ✓ Печь с баком на трубе (50 л)
  • ✓ Утепление пола и потолка — 150 мм
  • ✓ Кровля — профлист
  • ✓ Двери деревянные
  • ✓ Окна по проекту

Хотите узнать точную стоимость?

Позвоните нам или напишите в мессенджер для консультации